Лот: 250619
г.Брест, Космонавтов бул.
Этаж: 2 / 9
Год постройки: 1978 год
66.3 м²
СНБ
63.8 м²
общая
37.7 м²
жилая
7.3 м²
кухня
Стоимость:
202 982 руб
72 000 $
Стоимость за м²:
3 062 руб
1 086 $
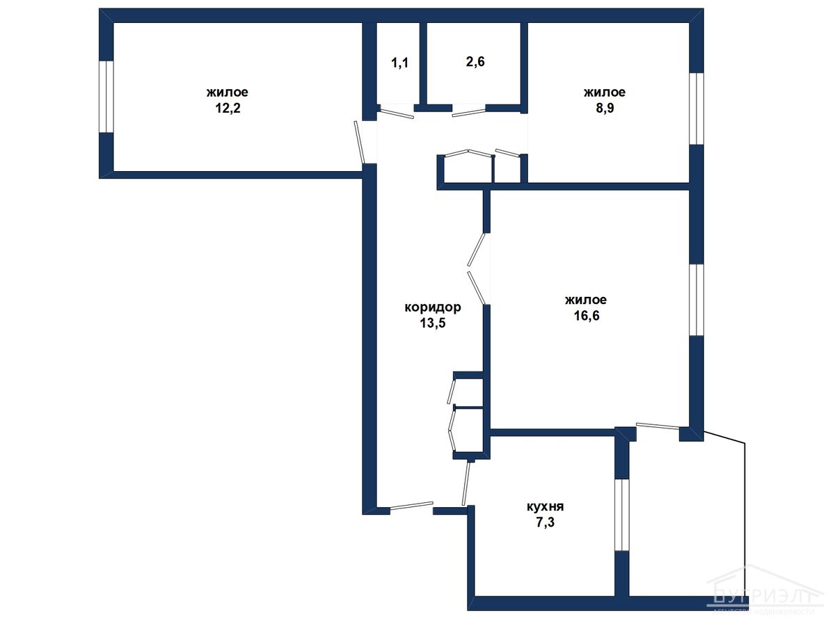
Трехкомнатная квартира, Космонавтов б-р
Продаётся 3-комнатная квартира в центре города Бреста. Квартира находится на втором этаже кирпичного девятиэтажного дома, 1978 года постройки.
Отличное расположение дома. Удачная планировка, окна на две стороны. Общая площадь квартиры с лоджией составляет 66,3 кв.м., жилая площадь - 37,7 кв.м, кухня - 7,3 кв.м. Санузел раздельный.
Жилое состояние, необходим будет ремонт. Окна двойные деревянные стеклопакеты, в одной комнате ПВХ, потолки - снежка, полы - доска крашеная и ламинат, стены оклеены обоями, межкомнатные двери деревянные, входная дверь металлическая.
Подъезд чистый, лифт. Производился капитальный ремонт дома.
Район имеет развитую инфраструктуру, рядом с домом расположены торговые объекты, рынок, аптеки, школы и сады. В шаговой доступности находится остановка общественного транспорта.
Лот 250619
Договор № 619/2 от 19.12.2025, ООО «Бугриэлт», УНП 291139313, лицензия № 02240/245 от 05.02.2013 на право осуществления деятельности по оказанию юридических услуг (риэлтерские услуги)
Отличное расположение дома. Удачная планировка, окна на две стороны. Общая площадь квартиры с лоджией составляет 66,3 кв.м., жилая площадь - 37,7 кв.м, кухня - 7,3 кв.м. Санузел раздельный.
Жилое состояние, необходим будет ремонт. Окна двойные деревянные стеклопакеты, в одной комнате ПВХ, потолки - снежка, полы - доска крашеная и ламинат, стены оклеены обоями, межкомнатные двери деревянные, входная дверь металлическая.
Подъезд чистый, лифт. Производился капитальный ремонт дома.
Район имеет развитую инфраструктуру, рядом с домом расположены торговые объекты, рынок, аптеки, школы и сады. В шаговой доступности находится остановка общественного транспорта.
Лот 250619
Договор № 619/2 от 19.12.2025, ООО «Бугриэлт», УНП 291139313, лицензия № 02240/245 от 05.02.2013 на право осуществления деятельности по оказанию юридических услуг (риэлтерские услуги)
- Характеристики:
- Год постройки: 1978 год
- Материал стен: кирпич
- Этаж квартиры: 2
- Этажность: 9
- Санузел: раздельный
- Балкон: лоджия
- Местоположение:
- Населенный пункт: г.Брест
- Микрорайон: Центр
- Улица: Космонавтов бул.
- Площадь:
- СНБ: 66.3 м²
- общая: 63.8 м²
- жилая: 37.7 м²
- кухня: 7.3 м²
- Дополнительно:
- Тип сделки: Продажа











